IRON MOUNTAIN
DOUBLE IRON MOUNTAIN
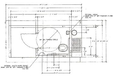
1 or 2 Singles User Restrooms - 1 or 2 Sinks with optional urinal
- Vault or Flush type, the Iron Mountain is designed
for the most extreme conditions for wind, snow, and
seismic activities. Cleaning is made easy through hard
durable finishes. Stainless Steel fixtures are optional
on Flush type units.
- Sweet Smelling Technology (SST) Design Criteria.
ADA, Federal Accessibility, & Title 24 compliant. 60"
Diameter interior turning radius.(2) 1123 Gallon vaults
or approximately 1650 uses per vault. ABS one piece
vault liner w/ side and floor embeds.
- Our standard concrete mix design reaches over
5000 psi. (Higher strengths are optional). Concrete
provides a long lasting, easy to clean surface.
Two-part epoxy paint on the reinforced 4 inch thick
interior walls and 5-inch floor create a clean bright
surface. Just wash it down with soap and water. The
life of concrete far out performs other materials.
Concrete will not burn or rot and is highly vandal
resistant.