PRESCOTT
- The Prescott is designed for the most extreme conditions for wind,
snow, and seismic activities. Cleaning is made easy through hard
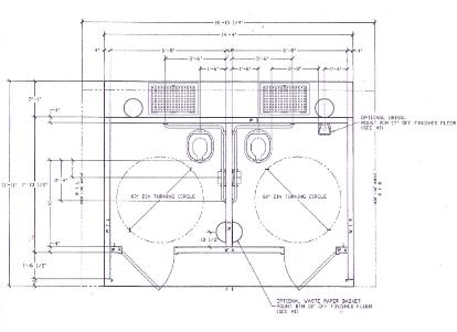
durable finishes. Stainless Steel urinal (right) is optional.
- Sweet Smelling Technology (SST) Design Criteria ADA, Federal
Accessibility, & Title 24 compliant. 60" Diameter interior turning radius
(2) 1123 Gallon vaults or approximately 1650 uses ABS one piece
vault liner w/ side and floor embeds.
- Our standard concrete mix design reaches over 5000 psi. (Higher
strengths are optional). Concrete provides a long lasting, easy to
clean surface. Two-part epoxy paint on the reinforced 4 inch thick
interior walls and 5-inch floor create a clean bright surface. Just wash
it down with soap and water. The life of concrete far out performs
other materials. Concrete will not burn or rot and is highly vandal
resistant.
2 Single User Restrooms - 2 Toilets